Overslaan naar inhoud
  Terug naar de modellen 


Tiny House Ark

Deze Tiny is gebouwd met een solide houten draagstructuur, behandeld voor maximale duurzaamheid. De dikke minerale wolisolatie in wanden, vloer en dak garandeert uitstekende energieprestaties. Zo geniet u het hele jaar door van comfort, veiligheid en kwaliteit.


Bekijk de mogelijkheden

 

Dit Tiny House voldoet aan EPC voorwaarden (BE) en het bouwbesluit (NL)

Premium constructie en materiaal


Elke kamer is zorgvuldig ontworpen voor maximale functionaliteit.

Gebouwd met ecologische bouwmaterialen.

Geschikt voor 1 of 2 personen en ook ideaal als mantelzorgoplossing!

Dit Tiny House voldoet aan EPC regelgeving (BE) en is conform bouwbesluit (NL).


Wat je krijgt


 Reeds beschikbaar vanaf           €108.000 incl. btw

 100% Ecologisch

 Voldoet aan EPC &                       bouwbesluit

 Off-grid mogelijk

 Ambachtelijk maatwerk

 Geschikt als zorgwoning

 Casco of compleet


Contact

Casco of compleet

Je kan kiezen voor een volledig ingericht Tiny House of voor een casco variant. Hierbij kan je de binnenkant helemaal in je eigen stijl afwerken en zo kosten besparen. Vanwege de solide houtskeletbouw verzorgen wij het transport met een dieplader en gebeurt de plaatsing met een kraan. Wij plaatsen de woning zorgvuldig op de (schroef)fundering, zodat jij alleen nog maar de sleutel hoeft om te draaien in je nieuwe, ecologische thuis.

Specificaties

Dit is er allemaal inbegrepen bij jouw Tiny House.

Binnenkant

 

Technische specificaties

  •  Houten constructie
  •  20 cm isolatie
  •  Dubbele beglazing
  •  Vinyl vloerafwerking
  •  Gebruiksoppervlak 28 m²
  •  Wandbekleding in laminaat (finisch naar keuze)


  • Technieken

  •  Normaal 32A (3-fasen)
  •  Off-grid 16A (monofase)
  •  Airconditioning met verwarmings- en koelfunctie
  •  Elektrische boiler voor warm water
  •  Volledig conform elektrisch verdeelbord
  •  Ventilatiesysteem met warmterecuperatie
  •  Led-verlichting binnen/buiten
  •  Aansluiting wasmachine
  •  4 Waterpunten: douche, toilet, wasbak en keuken

Buitenkant

 

Afmetingen

  • 3,5 m × 9,7 m x 4 m (B × L x H)
  •  Voetafdruk: ca. 34 m²
  •  Isolatie: 20 cm minerale wol (wanden, vloer en dak)

Gevelbekleding

  •  Duurzame houtconstructie
  •  Thermisch gemodificeerd
  •  Duurzaamheidsklasse 2


Overige

  •  Dubbele beglazing met jaloezieën
  •  Alle ramen HR++ veiligheidsglas
  •  Houtskeletbouw
  •  Mobiele uitvoering mogelijk (optioneel stalen chassis met wielen)
  •  Houtskeletbouw (damp-open)
  •  Off-grid mogelijk


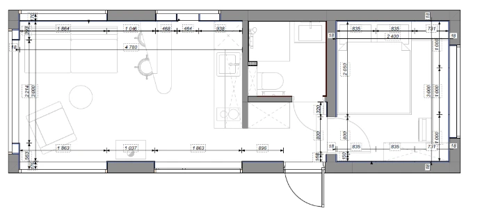
Plattegrond Ark

Prijs Tiny House Ark


Compleet

€ 135.000 incl. btw 

Deze complete woning bevat alles wat je van een volwaardige woning mag verwachten en is direct klaar voor gebruik. Hieronder een overzicht van de onderdelen. Uiteraard zijn er vele extra opties mogelijk en kan je het Tiny House helemaal naar eigen wens indelen en stylen. (Voor Nederland, deze woning voldoet aan het bouwbesuit)

Vraag de offerte aan

  • Voor deze prijs krijg je


  • Algemeen

  •  Volledig in houtskeletbouw
  •  20 cm minerale wol isolatie in wanden, vloer en dak
  •  Dubbele beglazing met geïntegreerde jaloezieën
  •  Ventilatiesysteem met warmterecuperatie
  •  Volledig elektrisch verdeelbord en installatie conform regelgeving
  •  Elektrische boiler 50 L voor warm water
  •  Hoogwaardige vinyl vloerafwerking in heel de woning
  •  Binnenafwerking in duurzaam laminaat
  •  Terras inbegrepen (andere maten zijn optioneel mogelijk)


  • Badkamer

  •  Ruime, betegelde douche met een glazen wand
  •  Luxe hangtoilet met bovenliggende opbergruimte
  •  Wastafel met anti-condens spiegel
  •  Handdoekverwarmer en een mechanische ventilatie


Woonkamer/ keuken

  •  Open woonkamer met grote raampartijen
  •  Keukeneiland met opberglades en eetruimte
  •  Volledig ingerichte keuken
  •  4-pits inductie kookplaat, oven, dampkap en koelkast
  •  Voorbereiding voor een vaatwasmachine


Slaapkamer

  •  Dubbel premium bed 160 x 200
  •  Ingemaakte kasten
  •  Bureau ruimte


  • Verwarming

  •  Airconditioning, verwarmen en koelen

Extra opties

Ontdek wat er aan extra opties zijn voor dit model

Extra opties

 

Wandbekleding

  •   Eigen keuze van bekleding mogelijk


Woonkamer/ keuken

  •   Hoge koelkast met vriesvak 
  •   Oven (elektrisch, gas of combi)
  •   Vaatwasser
  •   Inductie kookplaat 2-pits
  •   Gas kookplaat 2- of 4-pits


  • Slaapkamer

  •   Plissé gordijnen


  • Badkamer

  •   Verschillende kleuren wanden

  Bad


 

Verwarming

  •   Airco voor verwarmen/koelen
  •   Houtkachel
  •   Pellet kachel
  •   Vloerverwarming
  •   Infrarood panelen


Offgrid opties

  •   Compleet regenwaterrecuperatiesysteem
  •   Compleet zonnepanelensysteem met batterij
  •   TTulpe geiser op gas
  •   Oven + koken op gas
  •   Droog- of verbrandingstoilet naar keuze
  •   IBA tank voor grijs- en zwart water


Overig

  •   Stalen chassis met wielen voor mobiele plaatsing
  •   Extra stopcontacten
  •   Laminaat vloer
  •   Fundering middels schroefpalen

Kom Tiny House Ark bezoeken in Almere (demopark)


Heb je interesse in Tiny House Ark en wil je een showmodel graag ervaren. Neem dan contact op met Koen!

Bezoek het Tiny House Ark