Overslaan naar inhoud
  Terug naar de modellen 


Tiny House 

Little Nature XL

Hét model voor wie ecologisch wil wonen zonder in te leveren op de kwaliteit, isolatie en zekerheid, net zoals in een traditioneel woonhuis.


Bezoek deze woning in Almere

 

Dit Tiny House voldoet aan EPC voorwaarden (BE) en het bouwbesluit (NL)

Groots leven in een Tiny House


De Little Nature XL is een doordacht Tiny House dat compact wonen combineert met maximaal comfort en een warme, natuurlijke uitstraling. De woning is opgebouwd met voornamelijk ecologische en duurzame bouwmaterialen, wat resulteert in een gezond binnenklimaat, een lage ecologische voetafdruk en een aangenaam leefcomfort, het hele jaar door.

Binnenin beschikt de Little Nature XL over een volwaardige slaapkamer op het gelijkvloers, wat de woning bijzonder toegankelijk maakt. Boven de badkamer bevindt zich een extra slaap- of opbergloft, ideaal als logeerplek, bergruimte of multifunctionele zone. De slimme indeling zorgt ervoor dat elke vierkante meter optimaal benut wordt.

Deze woning is uitermate geschikt als gezinswoning of zorgwoning en voldoet voor Nederland aan het bouwbesluit.

Wat je krijgt


 Reeds beschikbaar vanaf €139.998 incl. btw

 Ecologische bouwmaterialen

 Slaapkamer op de begane grond + slaap/opbergloft

 Voldoet aan bouwbesluit

 Off-grid mogelijk

 Ambachtelijk maatwerk

 Geschikt als zorgwoning

 Casco of compleet


Contact
buitenkant tiny house little nature xl
3d model tiny house little nature xl
3d model tiny house little nature xl
buitenkant tiny house little nature xl
dak met zonnepanelen tiny house little nature xl
buitenkant tiny house little nature xl

Casco of compleet

Je kan kiezen voor een volledig ingericht Tiny House of voor een casco variant. Je kan de binnenkant dan helemaal in eigen stijl afbouwen en hiermee zelfs kosten besparen. De Little Nature XL weegt ca. 9.500 kg en wordt door ons met een dieplader en kraan op locatie geplaatst. Wij verzorgen het volledige traject: van de eerste schets en de vergunning bij de gemeente tot de uiteindelijke waterpas installatie op jouw grond.

Specificaties

Dit is er allemaal inbegrepen bij jouw Tiny House.

Binnenkant

 

Technische specificaties

  •  996 x 400 x 390 cm (LxBxH)
  •  Gebruiksoppervlak 32 m² (92 m³)
  •  Wandbekleding Fins vuren
  •  Laminaat of houten vloer
  •  Compleet ventilatiesysteem


  • Technieken

  •  Normaal 32A 
  •  Off-grid 16A
  •  Normaal 3-fasen stroom
  •  Off-grid monofase stroom
  •  Led-verlichting binnen/buiten
  •  Makkelijke buitenaansluiting
  •  50L boiler voor warm water
  •  Optie: aansluiting wasmachine
  •  4 Waterpunten: douche, toilet, wasbak en keuken

Buitenkant

 

Afmetingen

  •  996 x 400 x 390 cm (LxBxH)
  •  Voetafdruk 40 m²
  •  Gewicht ca. 9500 kg
  •  Rc: dak 6.3 | wand 4.7 | vloer 4
  •  Uit te breiden in de lengte /60 cm


Gevelbekleding

  •  Lunawood (vurenhout)
  •  Thermisch gemodificeerd
  •  KOMO en PEFC gecertificeerd
  •  Duurzaamheidsklasse 2


Overige

  •  Alle ramen HR++ veiligheidsglas
  •  Houtskeletbouw (damp-open)
  •  Off-grid mogelijk


3d model tiny house little nature xl

3D Plattegrond Tiny House Little Nature XL - Benedenverdieping

3d model tiny house little nature xl

3D plattegrond Tiny House Little Nature XL - Bovenverdieping

plattegrond tiny house little nature xl

2D plattegrond Tiny House Little Nature XL - Bovenverdieping

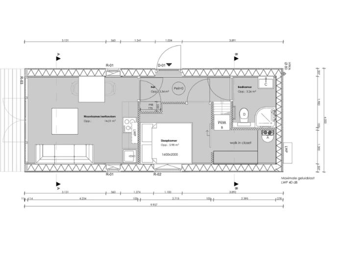
plattegrond tiny house little nature xl

Afmetingen Tiny House Little Nature XL 

Prijs Tiny House Little Nature XL


Compleet

€ 175.000 incl. btw 

De complete variant bevat alles wat je van een volwaardige woning mag verwachten en is direct klaar voor gebruik. Hieronder een overzicht van de basis onderdelen. Uiteraard zijn er vele extra opties mogelijk en kan je het Tiny House helemaal naar eigen wens indelen en stylen. Prijs is inclusief plaatsing en zonnepanelen.            (Voor Nederland, deze woning voldoet aan het bouwbesuit)

Vraag de offerte aan


  • Voor deze prijs krijg je


  • Algemeen

  •  Ecologische gevelbekleding van thermisch gemodificeerd Lunawood
  •  Ecologische isolatie van Gutex - 24 cm (Rc-waarde ≥ 5,8 m2K/W)
  •  Mechanisch ventilatiesysteem (Ducobox)
  •  Elektrische installatie conform Europese regelgeving
  •  4 Waterpunten aan- en afvoer (douche, wastafel, keuken, toilet)
  •  Muur & plafondbekleding van Fins vurenhout
  •  LED verlichting binnen & buiten met dimmer
  •  Glazen pui en ramen: HR++ glas
  •  Ondervloer badkamer
  •  Ondervloer woonkamer
  •  Ondervloer slaapkamer/ inloopkast
  •  Inclusief plaatsing
  •  Exclusief transport en fundering (bv. met schroefpalen)
  •  Loft met extra slaapplaats of bagageruimte


    • Badkamer

    •  Vloer badkamer: anti-slip en watervaste vloerbekleding
    •  Volledig ingerichte badkamer met douche
    •  Badkamerkast met waskom
    •  Spiegel met LED verlichting
    •  Hangtoilet Geberit

    • Woonkamer/ keuken

    •  Vloer woonkamer: Laminaat
    •  Complete inbouwkeuken
    •  4-pits inductie kookplaat
    •  Koelkast met vriesvak
    •  Elektrische oven
    •  Buitentrap


Slaapkamer/ inloopkast

  •  Ruime slaapkamer
  •  Ventilatiesysteem Duco
  •  Ruimte voorzien voor wasmachine en droger
  •  Boiler 50L
  •  Vloer slaapkamer: Laminaat

  • Verwarming

  •  Airconditioning Daikin in de woon- en slaapkamer                                            (verwarmen en koelen)
veranda tiny house little nature xl
dak met zonnepanelen tiny house little nature xl
buitenkant tiny house little nature xl
buitenkant tiny house little nature xl
buitenkant tiny house little nature xl

Extra opties

Ontdek wat er aan extra opties zijn voor dit model

Extra opties

 

Wandbekleding

  •   Eigen keuze van bekleding mogelijk


Woonkamer/ keuken

  •   Hoge koelkast met vriesvak 
  •   Oven (elektrisch, gas of combi)
  •   Vaatwasser
  •   Inductie kookplaat 4-pits
  •   Gas kookplaat 2- of 4-pits
  •   Aansluiting voor wasmachine


  • Slaapkamer

  •   Plissé gordijnen


  • Badkamer

  •   TTulpe geiser op gas
  •   Droogtoilet
  •   Verbrandingstoilet
  •   Verschillende kleuren wanden



 

Verwarming

  •   Airco voor verwarmen/koelen
  •   Houtkachel
  •   Pellet kachel
  •   Vloerverwarming
  •   Infrarood panelen


Offgrid opties

  •   Compleet regenwaterrecuperatiesysteem
  •   Compleet zonnepanelensysteem met batterij
  •   TTulpe geiser op gas
  •   Oven + koken op gas
  •   Droog- of verbrandingstoilet naar keuze
  •   IBA tank voor grijs- en zwart water


Overig

  •   Deur i.p.v. raam aan zijkant woning
  •   Extra stopcontacten
  •   Eiken vloer
  •   Fundering middels schroefpalen
demopark

Wist je dat het kleine broertje van dit model (Tiny House Little Nature) te bezoeken is in Almere?


Wil je het showmodel graag ervaren? Neem dan contact op met Koen!


Bezoek het Tiny House Little Nature