Overslaan naar inhoud
  Terug naar de modellen 


Tiny House 

Small House

Ultiem ecologisch comfort met panoramisch uitzicht.


Bekijk de mogelijkheden

 

Dit Tiny House voldoet aan EPC voorwaarden (BE) en het bouwbesluit (NL)

Groots leven in een Tiny House


Door de ruimte opzet en de grote raampartij beleef je in dit Small House een zee van ruimte.

Er worden voornamelijk ecologische bouwmaterialen gebruikt.

Naast een volwaardige woning, kan dit huis ook perfect dienen als mantelzorgoplossing.

Dit Tiny House voldoet aan het bouwbesluit en er kan een hypotheek op verkregen worden.

Een uitvoering met twee slaapkamers is ook mogelijk.

Small House is opgebouwd uit vijf modules van 5 x 2,44 m. 

Door deze slimme constructie kan dit huis vergoot of verkleind worden middels meer of minder modules.

Dit huis wordt in compleet afgewerkte delen op locatie gebracht en daar aan elkaar gekoppeld.


Wat je krijgt


 Reeds beschikbaar vanaf €144.100 incl. btw

 Ecologisch bouwmaterialen

 Voldoet aan bouwbesluit

 Off-grid mogelijk

 Hypotheek mogelijk

 Met overkapte buitenruimte

 Zeer geschikt als zorgwoning

 Casco of compleet


Contact
interieur tiny house small house
interieur tiny house small house
interieur tiny house small house
buitenkant tiny house small house
badkamer tiny house small house
badkamer tiny house small house

Casco of compleet

Je kan kiezen voor een volledig ingericht Small House of voor een casco variant. Je kan de binnenkant dan helemaal in eigen stijl afbouwen en hiermee kosten besparen. Het transport gebeurt in compleet afgewerkte delen die op locatie aan elkaar worden gekoppeld. Omdat wij ook de fundering (zoals schroefpalen) kunnen coördineren, bieden wij een totaalconcept aan waarbij u volledig ontzorgd wordt.

Specificaties

Dit is er allemaal inbegrepen bij jouw Tiny House.

Binnenkant

 

Technische specificaties

  •  976x 500 x 360 cm (LxBxH)
  •  Gebruiksoppervlak 28,4 m²
  •  Wandbekleding Fins vuren
  •  Laminaat of houten vloer
  •  Compleet ventilatiesysteem (Duco)


  • Technieken

  •  Normaal 32A 
  •  Off-grid 16A
  •  Normaal 3-fasen stroom
  •  Off-grid monofase stroom
  •  Led-verlichting binnen/buiten
  •  Makkelijke buitenaansluiting
  •  50L boiler voor warm water
  •  Optie: aansluiting wasmachine
  •  4 Waterpunten: douche, toilet, wasbak en keuken

Buitenkant

 

Afmetingen

  •  1220 x 500 x 360 cm (LxBxH)
  •  Voetafdruk 61 m²
  •  Gewicht ca. 10 ton
  •  Rc dak: 6 | Rc wand en vloer: 5


Gevelbekleding

  •  Lunawood (vurenhout)
  •  Thermisch gemodificeerd
  •  KOMO en PEFC gecertificeerd
  •  Duurzaamheidsklasse 2


Overige

  •  Alle ramen HR++ veiligheidsglas
  •  Houtskeletbouw (damp-open)
  •  Off-grid mogelijk


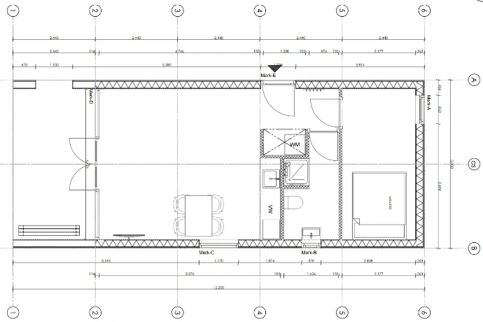
plattegrond tiny house small house

Plattegrond Tiny House Small House

plattegrond tiny house small house

3D plattegrond Tiny House Small House 

Neem een kijkje van binnen

Neem virtueel een kijkje in de Tiny House Small House en laat je inspireren.

Prijs Tiny House Small House


buitenkant tiny house small house

Compleet met overkapte veranda

€ 153.300 incl. btw 

De complete variant bevat alles wat je van een volwaardige woning mag verwachten en is direct klaar voor gebruik. Hieronder een overzicht van de basis onderdelen. Uiteraard zijn er vele extra opties mogelijk en kan je het Tiny House helemaal naar eigen wens indelen en stylen.  (Voor Nederland, deze woning voldoet aan het bouwbesuit)

Vraag de offerte aan

  • Voor deze prijs krijg je

Algemeen

  •  Bouwbesluitberekeningen, constructierapport, BENG
  •  Ecologische gevelbekleding van thermisch gemodificeerd Lunawood
  •  Ecologische isolatie van Gutex (Rc-waarde ≥ 5,8 m2K/W)
  •  Mechanisch ventilatiesysteem (Ducobox)
  •  Elektrische installatie conform Europese regelgeving
  •  4 Waterpunten aan- en afvoer (douche, wastafel, keuken, toilet)
  •  Muur & plafondbekleding van Fins vurenhout
  •  LED verlichting binnen & buiten met dimmer
  •  Glazen pui en ramen: HR++ glas
  •  Ondervloer woon-, bad- en slaapkamer

    • Badkamer

    •  Vloer badkamer: Forbo Surestep Original
    •  Volledig ingerichte badkamer met douche en glazen douchewand
    •  Badkamerkast met waskom en spiegel
    •  Elektrische boiler van 50 liter
    •  Spoeltoilet

Woonkamer/ keuken

    •  Vloer woonkamer: Fins vuren ondervloer (eindvloer niet inbegrepen)
    •  Complete keuken van behandeld hout
    •  4-pits inductie kookplaat
    •  Koelkast met vriezer
    •  Grote veranda / buitentrap

  • Verwarming

  •  Airconditioning Daikin, verwarmen en koelen


Extra

  •  Inclusief plaatsing
  •  Exclusief transport en fundering (bv. met schroefpalen)
  •  8 Zonnepanelen à 435W incl. micro-omvormers
interieur tiny house small house
badkamer tiny house small house
badkamer tiny house small house

Extra opties

Ontdek wat er aan extra opties zijn voor dit model

Extra opties

 

Wandbekleding

  •   Eigen keuze van bekleding mogelijk


Woonkamer/ keuken

  •   Hoge koelkast met vriesvak 
  •   Oven (elektrisch, gas of combi)
  •   Vaatwasser
  •   Inductie kookplaat 2-pits
  •   Gas kookplaat 2- of 4-pits
  •   Aansluiting voor wasmachine


  • Slaapkamer

  •   Plissé gordijnen
  •   Extra uitbreiding naar 2 slaapkamers


  • Badkamer

  •   Verschillende kleuren wanden
  •   Handdoekdroger



 

Verwarming

  •   Hout- of pelletkachel
  •   Vloerverwarming
  •   Infrarood panelen


Offgrid opties

  •   Compleet regenwaterrecuperatiesysteem
  •   Compleet zonnepanelensysteem met batterij
  •   TTulpe geiser op gas
  •   Oven + koken op gas
  •   Droog- of verbrandingstoilet naar keuze
  •   IBA tank voor grijs- en zwart water


Overig

  •   Deur i.p.v. raam aan zijkant woning
  •   Extra stopcontacten
  •   Eiken vloer
  •   Fundering middels schroefpalen
demopark

Kom een van onze Tiny House modellen bezoeken in Almere (demopark)


Ervaar een van onze modellen, Porto, Sunshine of Little Nature XL


Bezoek het demopark