Overslaan naar inhoud
  Terug naar de modellen 


Tiny House Vanea

Gelijkvloers én 4 slaapplaatsen

Bekijk de mogelijkheden

 

Gelijkvloers én 4 slaapplaatsen


Dit Tiny House is met zijn 8,5 x 3 m compact, maar beschikt tóch over 2 gelijkvloerse slaapkamers.

Tijdens vakantie kan hier heerlijk met 2 tot 4 personen genoten worden en indien het als (zorg) woning wordt gebruikt is het met 1 tot 2 personen een plek waarbij de extra kamer naar vrijheid kan worden ingevuld.

Een extra logeer- of werkkamer bijvoorbeeld!


Wat je krijgt


 Reeds beschikbaar vanaf 68.500 incl. btw

 Ruimte voor max 4 personen

 Slaapkamer op de begane grond

 Off-grid mogelijk

 Flexibele inzetbaarheid

 Mogelijk als zorgwoning

 Hoogte 3m50!


Contact
slaapkamer tiny house vanea
tiny house vanea
interieur tiny house vanea
stapelbed tiny house vanea
slaapkamer tiny house vanea
tiny house vanea

Ideaal als recreatie- of zelfs zorgwoning

Door het gelijkvloerse karakter en de indeling is dit model uitermate geschikt tot 4 personen. De tweede slaapkamer is flexibel inzetbaar. Naast kinderkamer of logeerkamer is deze perfect te gebruiken als thuiskantoor of hobbyruimte.

Specificaties

Dit is er allemaal inbegrepen bij jouw Tiny House.

Binnenkant

 

Technische specificaties

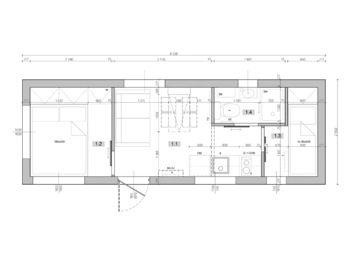
  •  Bewoonbare oppervlakte: 20,7 m²
  •  Woonkamer met kitchenette
  •  Compacte badkamer
  •  Ruime slaapkamer met inbouwkasten
  •  2de slaapkamer met een stapelbed
  •  Wandbekleding in dennenhout


  • Technieken

  •  Een gehomologeerde, elektrische installatie
  •  Ledverlichting binnen/buiten: energiezuinig en sfeervol
  •  5 waterpunten: keuken, badkamer, douche, toilet en wasmachine
  •  Boiler van 50L: voor warm water, efficiënt en betrouwbaar
  •  Airconditioning (2 units) voor verwarmen en koelen
  •  Optie: Installatie op gas, zowel om te koken als voor warm water
  •  Optie: Extra watertappunt buiten
  •  Optie: Vloerverwarming

Buitenkant

 

Afmetingen

  •  850 x 300 x 350 cm (LxBxH)
  •  Geschikt voor 4 personen


Gevelbekleding

  •  Behandeld vurenhout
  •  Optie: combinatie van thermisch behandeld hout en metalen platen
  •  Optie: Shou Shugi Ban


Overige

  •  6 Ramen met driedubbel glas HR+++
  •  Muurisolatie 15 cm minerale wol
  •  Dakbedekking van plaatstaal: Sterk en bestand tegen alle weersomstandigheden
  •  Optie: Terras voor de woning
  •  Optie: 20 cm isolatie, voor meer energie-efficiëntie en comfort
  •  Optie: Dakramen voor extra lichtinval





3d plattegrond tiny house vanea

3D plattegrond Tiny House Vanea

plattegrond tiny house vanea

Plattegrond en maten Tiny House Vanea

Neem een kijkje van binnen

Neem virtueel een kijkje in de Tiny House Vanea en laat je inspireren.

Prijs Tiny House Vanea

tiny house vanea

Compleet

€74.630 incl. btw en transport*

Onderstaande onderdelen zijn individueel aanpasbaar en er kunnen zowel dingen weggelaten als toegevoegd worden. Er zijn vele extra opties mogelijk. Vraag een offerte aan om deze in te kunnen zien.

Vraag de offerte aan

  • Voor deze prijs krijg je


  • Algemeen

  •  Tiny House standaard voorzien zonder wielen (plaatsing met kraan)
  •  Gevelbekleding van behandeld vurenhout 
  •  Isolatie: 15 cm minerale wol in muren en dak 
  •  6 ramen, PVC-kozijnen met driedubbele beglazing
  •  Voordeur met buitentrap 
  •  Elektrische installatie conform Europese regelgeving
  •  Knaagdierbescherming onder vloer 
  •  Binnenwanden bekleed met vurenhout 
  •  Verlichting middels wandlampen en spots 
  •  Laminaatvloer in gehele woning 
  •  2 slaapkamers op het gelijkvloers
  •  Badkamer met Fibo tegels 
  •  Woonkamer + keuken
  •  Rookmelder en brandblusser


  • Badkamer

  •  Douche met glazen wand
  •  Spoeltoilet
  •  Wastafel met onderkast
  •  Elektrische boiler 50L 


  • Keuken

  •  Keukenblok met 3 elementen
  •  Bovenkastjes
  •  Spoelbak met kraan
  •  Tweepits inductiekookplaat
  •  Tafelmodel koelkast
  •  Ingebouwde afzuigkap
  •  Ingebouwde oven/magnetron


  • Verwarming

  •  Airconditioning voor verwarmen en koelen


  • Overig

  •  Steunen voor plaatsing (betonblokken inbegrepen)
  •  Installatieservice: Tiny House waterpas zetten
  •  Aansluiting op de nutsvoorzieningen
  •  Kraanwerk wordt afzonderlijk berekend in functie van de locatie


*De transportkosten zijn een geschatte kostenpost. De exacte kosten hangen af van de exacte bezorg locatie van het Tiny House.

interieur tiny house vanea
slaapkamer tiny house vanea
stapelbed tiny house vanea

Extra opties

Ontdek wat er aan extra opties zijn voor dit model (niet limitatief)

Extra opties

 

Badkamer

  •   Extra kastenruimte
  •   Geberit hangtoilet
  •   Spiegel met led verlichting
  •   Normale draaideur ipv schuifdeur
  •   PVC vloer


Woonkamer/ keuken

  •   4 pits kookplaat
  •   Standaard elektrische oven
  •   Grote koelkast
  •   Slaapbank met extra opbergruimte


  • Verwarming

  •   Een kachel met hout of Pellets
  •   Een handdoekradiator
  •   Vloerverwarming



 

Offgrid opties

  •   Zonnepanelen met een batterij
  •   Regenwaterrecuperatiesysteem
  •   Waterzuivering voor grijs- en zwart water (toilet, douche en keuken)
  •   Droog- of verbrandingstoilet

Overig

  •   Woning gebouwd op een trailer, met wielen
  •   Terras voor de woning
  •   Extra dakraam voor meer lichtinval
  •   Gasinstallatie voor koken en warmwater
  •   Plissé gordijnen en/of horren
  •   Rolluiken buitenkant
  •   Disselbak
  •   Dubbele openslaande deuren
  •   Extra stopcontacten
  •   Aangebouwd halletje 
  •   Diefstalbeveiliging
demopark

Kom een van onze Tiny House modellen bezoeken in Almere (demopark)


Ervaar een van onze modellen, Porto, Sunshine of Little Nature XL


Bezoek het demopark